Corner Residence Lakások
Liftes Társasházi lakások: 47-62 m2




Tervező: Major Gina I Tóth Sándor
Lakóegységek száma: 11 db
Teremgarázsok száma: 11 db
Tervezés éve: 2026 január
Lakóegységek száma: 11 db
Teremgarázsok száma: 11 db
Tervezés éve: 2026 január
Corner Residence – Dorogi utca 10.
11 lakásos, liftes társasház – most leköthető
A Corner Residence egy új építésű társasház Hajdúböszörmény kiváló infrastruktúrával rendelkező környékén.
Az épület a Dorogi utca 10. szám alatt valósul meg – kiváló választás mindazoknak, akik modern, élhető otthont keresnek.
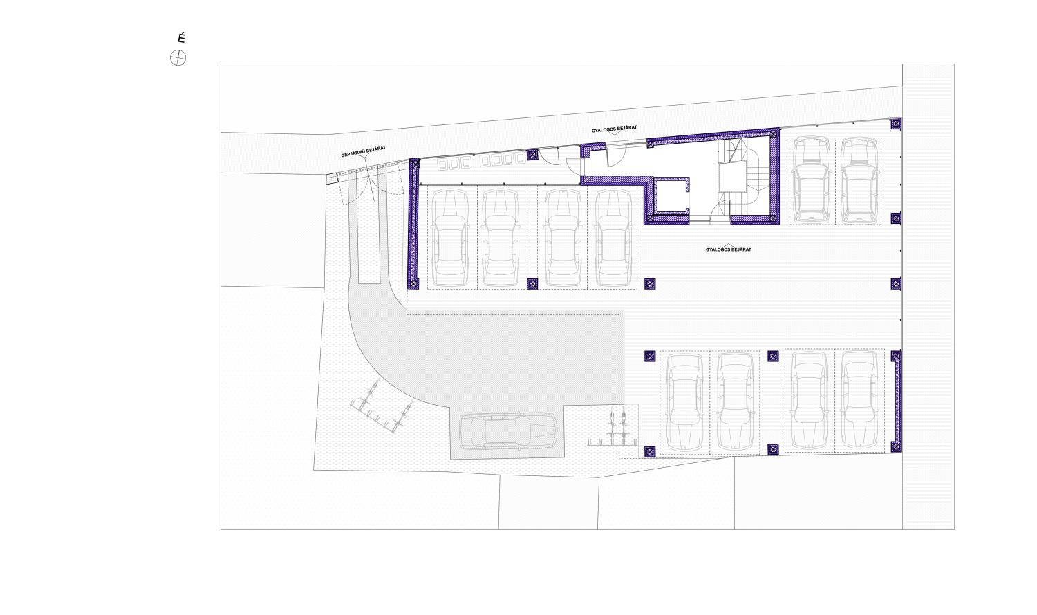
A földszinten nyitott teremgarázs kapott helyet, ahol minden lakáshoz gépjármű számára biztosított parkoló áll rendelkezésre.

A garázs különlegessége az acélszerkezetű, növénnyel futtatott kerítés, amely nemcsak biztonságos, de természetes, barátságos atmoszférát is teremt.
Élhető lakások – minden szinten
A lakások az első és második emeleten 4–4 elosztásban, a tetőtérben pedig további 3 lakás formájában valósulnak meg.
A házban lift is épül, így minden szint könnyedén elérhető akár az utcáról, akár a teremgarázsból.
Lakásméretek: 47 m² – 62 m² | 1–2 szobás elosztás
A Corner Residence közvetlen közelében megtalálható minden, ami a kényelmes mindennapokhoz szükséges: boltok, gyógyszertár, iskola, óvoda – minden elérhető gyalogosan is.
A lakások már leköthetőek!
Ár: 1.150.000 Ft/nm
Teremgarázs ár: 2.500.000 Ft
Várható átadás: 2027 tavasza
További projektek


















